Další informace

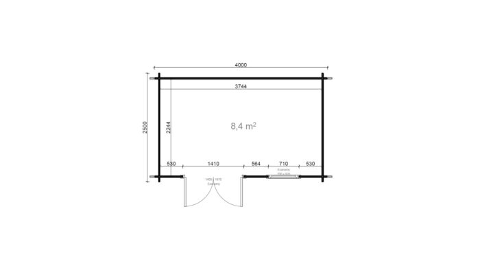
Šířka a délka chaty

2,5×4 m

Výška budovy po hřeben

2,16 m

Výška obvodových stěn

1,89 m

Zastavěna plocha bez izolace

10 m²

Obytná plocha

8,4 m²

Tloušťka stěny

28 mm – Dřevěný roubený hranol

Plocha střechy

12 m² – Střešní záklop palubky 9 mm

Počet oken | Typ | Výška a šířka

1, Dřevěný rám izolační dvojsklo, 92 x 70 cm

Počet dveří | Typ | Výška a šířka

1, Dřevěné masivní plné / Izolační dvojsklo, 185 x 140 cm

Počet pokojů

1

Tloušťka podlahových prken

19 / 28 mm

BONUS KE KAŽDÉ DŘEVOSTAVBĚ

Bezplatná kontrola stavu během záruky

Vaše spokojenost pro nás nekončí předáním klíčů. Po celou dobu trvání pětileté záruky u vás bezplatně provedeme osobní kontrolu stavu chaty. Naši tesaři zkontrolují usazení konstrukce a kondici dřeva, abychom zajistili jeho maximální životnost.

I po uplynutí záruční lhůty jsme vám stále k dispozici. Nabízíme vám bezplatné odborné poradenství ohledně údržby a v případě potřeby zajistíme profesionální servisní zásah se speciální slevou pro naše stávající klienty.

Vážíme si toho, že jste si pro svůj projekt vybrali právě B&M WOOD. Jako poděkování a připomínku naší spolupráce obdržíte ke každé realizované chatě originální ručně vyrobený dárek z naší dílny, který zútulní váš nový zahradní prostor.

MŮŽE VÁS TAKÉ INSPIROVAT

Libor D

📏 20 m² | 🧱 44 mm | 📐 5000 x 4000 mm

204 800,00 

Straňanka

📏 68,5 m² | 🧱 44/68 mm | 📐 5740 x 11940 mm

941 500,00 

Alice

📏 12m² | 🧱 28mm | 📐 4000x3000 mm

99 900,00 

Babeta

89 800,00 

Nábytek a vybavení nejsou součástí.

Kompaktní řešení pro vaši zahradu, které v sobě snoubí útulnost a praktičnost. Model Alice je ideální volbou pro ty, kteří hledají místo pro víkendový odpočinek nebo stylové zázemí na pozemku.

Díky proskleným dveřím a dvěma oknům interiér působí vzdušně a nabízí dostatek přirozeného světla.

Precizní konstrukce z hustého vysokohorského dřeva s tloušťkou stěny 28 mm zaručuje výbornou stabilitu a životnost, zatímco zastavěná plocha 12 m² umožňuje snadné umístění i do menších zahrad bez nutnosti složitých stavebních úprav.

Další informace

Šířka a délka chaty

2,5×4 m

Výška budovy po hřeben

2,16 m

Výška obvodových stěn

1,89 m

Zastavěna plocha bez izolace

10 m²

Obytná plocha

8,4 m²

Tloušťka stěny

28 mm – Dřevěný roubený hranol

Plocha střechy

12 m² – Střešní záklop palubky 9 mm

Počet oken | Typ | Výška a šířka

1, Dřevěný rám izolační dvojsklo, 92 x 70 cm

Počet dveří | Typ | Výška a šířka

1, Dřevěné masivní plné / Izolační dvojsklo, 185 x 140 cm

Počet pokojů

1

Tloušťka podlahových prken

19 / 28 mm


BONUS KE KAŽDÉ OBJEDNÁVCE

Bezplatná kontrola stavu během záruky

Vaše spokojenost pro nás nekončí předáním klíčů. Po celou dobu trvání pětileté záruky u vás bezplatně provedeme osobní kontrolu stavu chaty. Naši tesaři zkontrolují usazení konstrukce a kondici dřeva, abychom zajistili jeho maximální životnost.

I po uplynutí záruční lhůty jsme vám stále k dispozici. Nabízíme vám bezplatné odborné poradenství ohledně údržby a v případě potřeby zajistíme profesionální servisní zásah se speciální slevou pro naše stávající klienty.

Vážíme si toho, že jste si pro svůj projekt vybrali právě B&M WOOD. Jako poděkování a připomínku naší spolupráce obdržíte ke každé realizované chatě originální ručně vyrobený dárek z naší dílny, který zútulní váš nový zahradní prostor.

MŮŽE VÁS TAKÉ INSPIROVAT

No products were found matching your selection.