Další informace

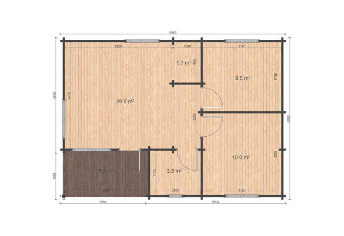
Šířka a délka chaty

6,3×8,8 m

Výška budovy po hřeben

3,1 m

Výška obvodových stěn

2,3 m

Zastavěna plocha bez izolace

55,4 m²

Obytná plocha

44,4 m²

Tloušťka stěny

44/68 mm – Dřevěný roubený hranol

Plocha střechy

62 m² – Střešní záklop palubky 19 mm

Počet oken | Typ | Výška a šířka

6, Dřevěný rám izolační dvojsklo, 92×130, 198×150, 52×50 cm

Počet dveří | Typ | Výška a šířka

4, Dřevěné masivní plné / Izolační dvojsklo, 198×85 cm

Počet pokojů

4

Plocha terasy

5,9 m²

Tloušťka podlahových prken

19 / 28 mm

BONUS KE KAŽDÉ DŘEVOSTAVBĚ

Bezplatná kontrola stavu během záruky

Vaše spokojenost pro nás nekončí předáním klíčů. Po celou dobu trvání pětileté záruky u vás bezplatně provedeme osobní kontrolu stavu chaty. Naši tesaři zkontrolují usazení konstrukce a kondici dřeva, abychom zajistili jeho maximální životnost.

I po uplynutí záruční lhůty jsme vám stále k dispozici. Nabízíme vám bezplatné odborné poradenství ohledně údržby a v případě potřeby zajistíme profesionální servisní zásah se speciální slevou pro naše stávající klienty.

Vážíme si toho, že jste si pro svůj projekt vybrali právě B&M WOOD. Jako poděkování a připomínku naší spolupráce obdržíte ke každé realizované chatě originální ručně vyrobený dárek z naší dílny, který zútulní váš nový zahradní prostor.

MŮŽE VÁS TAKÉ INSPIROVAT

Straňanka

📏 68,5 m² | 🧱 44/68 mm | 📐 5740 x 11940 mm

941 500,00 

Sissi

📏 33,6 m² | 🧱 44 mm | 📐 4200 x 8000 mm

415 500,00 

Javorec

📏 43 m² | 🧱 44 / 68 mm | 📐 6500 x 7700 mm

646 200,00 

Jasná II

706 200,00 

Nábytek a vybavení nejsou součástí.

Model Jasná II představuje velkoryse pojatou dřevostabou, která na zastavěné ploše přes 55 m² kombinuje praktičnost se stylem. Dispozice rozdělená do čtyř samostatných místností poskytuje dostatek soukromí i pro větší rodinu, zatímco integrovaná terasa o rozloze 5,9 m² tvoří příjemný krytý vstup do objektu.

Chata je osazena šesti okny s izolačním dvojsklem v různých formátech, což zajišťuje optimální prosvětlení všech částí interiéru. Masivní konstrukce z 44mm nebo 68mm roubeného hranolu spolu s možností volby zesílené podlahy (28 mm) podtrhuje robustnost stavby.

Se čtyřmi samostatnými vchody a výškou hřebene 3,1 metru je Jasná II vysoce funkčním řešením pro dlouhodobou rekreaci v přírodě, které klade důraz na kvalitu použitého vysokohorského dřeva a precizní tesařské spoje.

706 200 Kč – 44 mm / 879 500 Kč – 68 mm

Další informace

Šířka a délka chaty

6,3×8,8 m

Výška budovy po hřeben

3,1 m

Výška obvodových stěn

2,3 m

Zastavěna plocha bez izolace

55,4 m²

Obytná plocha

44,4 m²

Tloušťka stěny

44/68 mm – Dřevěný roubený hranol

Plocha střechy

62 m² – Střešní záklop palubky 19 mm

Počet oken | Typ | Výška a šířka

6, Dřevěný rám izolační dvojsklo, 92×130, 198×150, 52×50 cm

Počet dveří | Typ | Výška a šířka

4, Dřevěné masivní plné / Izolační dvojsklo, 198×85 cm

Počet pokojů

4

Plocha terasy

5,9 m²

Tloušťka podlahových prken

19 / 28 mm


BONUS KE KAŽDÉ OBJEDNÁVCE

Bezplatná kontrola stavu během záruky

Vaše spokojenost pro nás nekončí předáním klíčů. Po celou dobu trvání pětileté záruky u vás bezplatně provedeme osobní kontrolu stavu chaty. Naši tesaři zkontrolují usazení konstrukce a kondici dřeva, abychom zajistili jeho maximální životnost.

I po uplynutí záruční lhůty jsme vám stále k dispozici. Nabízíme vám bezplatné odborné poradenství ohledně údržby a v případě potřeby zajistíme profesionální servisní zásah se speciální slevou pro naše stávající klienty.

Vážíme si toho, že jste si pro svůj projekt vybrali právě B&M WOOD. Jako poděkování a připomínku naší spolupráce obdržíte ke každé realizované chatě originální ručně vyrobený dárek z naší dílny, který zútulní váš nový zahradní prostor.

MŮŽE VÁS TAKÉ INSPIROVAT

No products were found matching your selection.