Další informace

Šířka a délka chaty

5,96×9,16 m

Výška budovy po hřeben

3,55 m

Výška obvodových stěn

2,43 m

Zastavěna plocha bez izolace

54,6 m²

Obytná plocha

50 m²

Tloušťka stěny

44/68 mm – Dřevěný roubený hranol

Plocha střechy

60,5m² – Střešní záklop palubky 19 mm

Počet oken | Typ | Výška a šířka

8, Dřevěný rám izolační dvojsklo, 52×50, 198×85, 198×150 cm

Počet dveří | Typ | Výška a šířka

4, Dřevěné masivní plné / Izolační dvojsklo, 198×85

Počet pokojů

4

Tloušťka podlahových prken

19/28 mm

BONUS KE KAŽDÉ DŘEVOSTAVBĚ

Bezplatná kontrola stavu během záruky

Vaše spokojenost pro nás nekončí předáním klíčů. Po celou dobu trvání pětileté záruky u vás bezplatně provedeme osobní kontrolu stavu chaty. Naši tesaři zkontrolují usazení konstrukce a kondici dřeva, abychom zajistili jeho maximální životnost.

I po uplynutí záruční lhůty jsme vám stále k dispozici. Nabízíme vám bezplatné odborné poradenství ohledně údržby a v případě potřeby zajistíme profesionální servisní zásah se speciální slevou pro naše stávající klienty.

Vážíme si toho, že jste si pro svůj projekt vybrali právě B&M WOOD. Jako poděkování a připomínku naší spolupráce obdržíte ke každé realizované chatě originální ručně vyrobený dárek z naší dílny, který zútulní váš nový zahradní prostor.

MŮŽE VÁS TAKÉ INSPIROVAT

Javorec

📏 43 m² | 🧱 44 / 68 mm | 📐 6500 x 7700 mm

646 200,00 

Šajba

📏 71,5 m² | 🧱 44 mm / 68 mm | 📐 7000 x 10200 mm

868 300,00 

Stázka

📏 20 m² | 🧱 44 mm | 📐 3700 x 5400 mm

447 700,00 

Květná

930 400,00 

Nábytek a vybavení nejsou součástí.

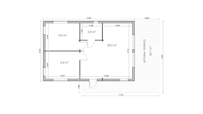
Model Květná je synonymem pro pohodlí a praktičnost na jedné úrovni. S celkovou zastavěnou plochou 54,6 m² nabízí tato přízemní dřevostavba vyváženou dispozici čtyř místností, které jsou díky výšce hřebene 3,55 m velmi vzdušné.

Výrazným prvkem je sestava osmi oken, která zahrnuje i velkorysé prosklené plochy o výšce 198 cm, čímž dochází k maximálnímu propojení interiéru s okolní přírodou. Robustní stěny z roubeného hranolu (volitelně až 68 mm) a střešní záklop z 19mm palubek zajišťují stabilitu a dlouhou životnost stavby.

Se čtyřmi vstupy a kvalitním izolačním dvojsklem v dřevěných rámech je Květná ideální volbou pro ty, kteří hledají bezbariérové a prosvětlené bydlení z poctivého vysokohorského smrku.

Další informace

Šířka a délka chaty

5,96×9,16 m

Výška budovy po hřeben

3,55 m

Výška obvodových stěn

2,43 m

Zastavěna plocha bez izolace

54,6 m²

Obytná plocha

50 m²

Tloušťka stěny

44/68 mm – Dřevěný roubený hranol

Plocha střechy

60,5m² – Střešní záklop palubky 19 mm

Počet oken | Typ | Výška a šířka

8, Dřevěný rám izolační dvojsklo, 52×50, 198×85, 198×150 cm

Počet dveří | Typ | Výška a šířka

4, Dřevěné masivní plné / Izolační dvojsklo, 198×85

Počet pokojů

4

Tloušťka podlahových prken

19/28 mm


BONUS KE KAŽDÉ OBJEDNÁVCE

Bezplatná kontrola stavu během záruky

Vaše spokojenost pro nás nekončí předáním klíčů. Po celou dobu trvání pětileté záruky u vás bezplatně provedeme osobní kontrolu stavu chaty. Naši tesaři zkontrolují usazení konstrukce a kondici dřeva, abychom zajistili jeho maximální životnost.

I po uplynutí záruční lhůty jsme vám stále k dispozici. Nabízíme vám bezplatné odborné poradenství ohledně údržby a v případě potřeby zajistíme profesionální servisní zásah se speciální slevou pro naše stávající klienty.

Vážíme si toho, že jste si pro svůj projekt vybrali právě B&M WOOD. Jako poděkování a připomínku naší spolupráce obdržíte ke každé realizované chatě originální ručně vyrobený dárek z naší dílny, který zútulní váš nový zahradní prostor.

MŮŽE VÁS TAKÉ INSPIROVAT

No products were found matching your selection.