Další informace

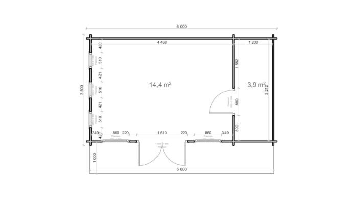
Šířka a délka chaty

6×3,5 m

Výška budovy po hřeben

2,6 m

Výška obvodových stěn

2,3 m

Zastavěna plocha bez izolace

21 m²

Tloušťka stěny

44 mm – Dřevěný roubený hranol

Plocha střechy

30 m² – Střešní záklop palubky 19 mm

Počet oken | Typ | Výška a šířka

5, Dřevěný rám izolační dvojsklo, 198×85, 198×50 cm

Počet dveří | Typ | Výška a šířka

2, Dřevěné masivní plné / Izolační dvojsklo, 198×85, 198×160 cm

Počet pokojů

2

Tloušťka podlahových prken

19 mm

BONUS KE KAŽDÉ DŘEVOSTAVBĚ

Bezplatná kontrola stavu během záruky

Vaše spokojenost pro nás nekončí předáním klíčů. Po celou dobu trvání pětileté záruky u vás bezplatně provedeme osobní kontrolu stavu chaty. Naši tesaři zkontrolují usazení konstrukce a kondici dřeva, abychom zajistili jeho maximální životnost.

I po uplynutí záruční lhůty jsme vám stále k dispozici. Nabízíme vám bezplatné odborné poradenství ohledně údržby a v případě potřeby zajistíme profesionální servisní zásah se speciální slevou pro naše stávající klienty.

Vážíme si toho, že jste si pro svůj projekt vybrali právě B&M WOOD. Jako poděkování a připomínku naší spolupráce obdržíte ke každé realizované chatě originální ručně vyrobený dárek z naší dílny, který zútulní váš nový zahradní prostor.

MŮŽE VÁS TAKÉ INSPIROVAT

Karel

📏 31,2 m² | 🧱 44 mm | 📐 4000 x 7800 mm

379 800,00 

Býlnička

📏 69 m² | 🧱 44 mm / 68 mm | 📐 6000 x 11500 mm

858 600,00 

Terka

📏 27 m² | 🧱 44 / 68 mm | 📐 4500 x 6000 mm

509 800,00 

Lara

383 900,00 

Nábytek a vybavení nejsou součástí.

Model Lara představuje elegantní a moderní řešení rekreačního objektu, který vyniká svou prosvětleností a čistými liniemi. Na zastavěné ploše 21 m² nabízí praktickou dispozici rozdělenou do dvou místností, což umožňuje snadné oddělení obytné části od ložnice nebo zázemí.

Chata je osazena pěti vysokými prosklenými prvky, které společně s dvoukřídlými dveřmi s izolačním dvojsklem vytvářejí pocit sepětí s okolní přírodou a zajišťují mimořádnou světlost interiéru. Masivní konstrukce z 44mm roubeného hranolu v kombinaci s kvalitním vysokohorským dřevem garantuje stabilitu a dlouhou životnost.

Díky svému obdélníkovému formátu a modernímu vzhledu je Lara ideální volbou pro vybudování stylového letního sídla nebo komfortního zahradního ateliéru.

Další informace

Šířka a délka chaty

6×3,5 m

Výška budovy po hřeben

2,6 m

Výška obvodových stěn

2,3 m

Zastavěna plocha bez izolace

21 m²

Tloušťka stěny

44 mm – Dřevěný roubený hranol

Plocha střechy

30 m² – Střešní záklop palubky 19 mm

Počet oken | Typ | Výška a šířka

5, Dřevěný rám izolační dvojsklo, 198×85, 198×50 cm

Počet dveří | Typ | Výška a šířka

2, Dřevěné masivní plné / Izolační dvojsklo, 198×85, 198×160 cm

Počet pokojů

2

Tloušťka podlahových prken

19 mm


BONUS KE KAŽDÉ OBJEDNÁVCE

Bezplatná kontrola stavu během záruky

Vaše spokojenost pro nás nekončí předáním klíčů. Po celou dobu trvání pětileté záruky u vás bezplatně provedeme osobní kontrolu stavu chaty. Naši tesaři zkontrolují usazení konstrukce a kondici dřeva, abychom zajistili jeho maximální životnost.

I po uplynutí záruční lhůty jsme vám stále k dispozici. Nabízíme vám bezplatné odborné poradenství ohledně údržby a v případě potřeby zajistíme profesionální servisní zásah se speciální slevou pro naše stávající klienty.

Vážíme si toho, že jste si pro svůj projekt vybrali právě B&M WOOD. Jako poděkování a připomínku naší spolupráce obdržíte ke každé realizované chatě originální ručně vyrobený dárek z naší dílny, který zútulní váš nový zahradní prostor.

MŮŽE VÁS TAKÉ INSPIROVAT

No products were found matching your selection.