Další informace

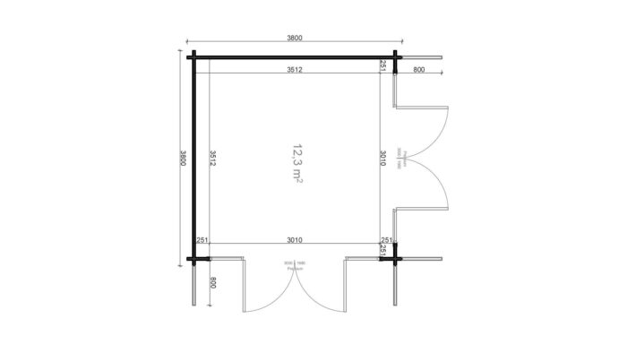
Šířka a délka chaty

3,8×3,8 m

Výška budovy po hřeben

2,43 m

Výška obvodových stěn

2,36 m

Zastavěna plocha bez izolace

14,4 m²

Tloušťka stěny

44 mm – Dřevěný roubený hranol

Plocha střechy

20,3 m² – Střešní záklop palubky 19 mm

Počet dveří | Typ | Výška a šířka

2, Dřevěné masivní plné / Izolační dvojsklo, 198×300 cm

Počet pokojů

1

Tloušťka podlahových prken

19 mm

BONUS KE KAŽDÉ DŘEVOSTAVBĚ

Bezplatná kontrola stavu během záruky

Vaše spokojenost pro nás nekončí předáním klíčů. Po celou dobu trvání pětileté záruky u vás bezplatně provedeme osobní kontrolu stavu chaty. Naši tesaři zkontrolují usazení konstrukce a kondici dřeva, abychom zajistili jeho maximální životnost.

I po uplynutí záruční lhůty jsme vám stále k dispozici. Nabízíme vám bezplatné odborné poradenství ohledně údržby a v případě potřeby zajistíme profesionální servisní zásah se speciální slevou pro naše stávající klienty.

Vážíme si toho, že jste si pro svůj projekt vybrali právě B&M WOOD. Jako poděkování a připomínku naší spolupráce obdržíte ke každé realizované chatě originální ručně vyrobený dárek z naší dílny, který zútulní váš nový zahradní prostor.

MŮŽE VÁS TAKÉ INSPIROVAT

Libor B

📏 16 m² | 🧱 44 mm | 📐 4000 x 4000 mm

186 200,00 

Libor G

📏 30 m² | 🧱 44 mm | 📐 6000 x 5000 mm

239 100,00 

Hubert B

📏 50,4 m² | 🧱 44 mm | 📐 7000 x 7200 mm

579 000,00 

Pupča

283 100,00 

Nábytek a vybavení nejsou součástí.

Model Pupča sází na symetrický čtvercový půdorys a maximální otevřenost. Přestože se jedná o kompaktní stavbu se zastavěnou plochou 14,4 m², díky dvěma mimořádně širokým proskleným vstupům (každý o šířce 300 cm) působí interiér neuvěřitelně prostorně a vzdušně.

Tento model prakticky stírá hranici mezi vnitřním prostorem a zahradou, což ho předurčuje k využití jako moderní zahradní altán, prosvětlený letní obývací pokoj nebo stylové zázemí u bazénu. Robustní 44mm roubený hranol a téměř shodná výška stěn a hřebene zajišťují stavbě minimalistický, kubický vzhled, který skvěle doplňuje moderní architekturu.

Použití izolačních dvojskel a kvalitního vysokohorského dřeva je i u tohoto menšího modelu samozřejmostí, která zaručuje stabilitu a dlouhou životnost.

Další informace

Šířka a délka chaty

3,8×3,8 m

Výška budovy po hřeben

2,43 m

Výška obvodových stěn

2,36 m

Zastavěna plocha bez izolace

14,4 m²

Tloušťka stěny

44 mm – Dřevěný roubený hranol

Plocha střechy

20,3 m² – Střešní záklop palubky 19 mm

Počet dveří | Typ | Výška a šířka

2, Dřevěné masivní plné / Izolační dvojsklo, 198×300 cm

Počet pokojů

1

Tloušťka podlahových prken

19 mm


BONUS KE KAŽDÉ OBJEDNÁVCE

Bezplatná kontrola stavu během záruky

Vaše spokojenost pro nás nekončí předáním klíčů. Po celou dobu trvání pětileté záruky u vás bezplatně provedeme osobní kontrolu stavu chaty. Naši tesaři zkontrolují usazení konstrukce a kondici dřeva, abychom zajistili jeho maximální životnost.

I po uplynutí záruční lhůty jsme vám stále k dispozici. Nabízíme vám bezplatné odborné poradenství ohledně údržby a v případě potřeby zajistíme profesionální servisní zásah se speciální slevou pro naše stávající klienty.

Vážíme si toho, že jste si pro svůj projekt vybrali právě B&M WOOD. Jako poděkování a připomínku naší spolupráce obdržíte ke každé realizované chatě originální ručně vyrobený dárek z naší dílny, který zútulní váš nový zahradní prostor.

MŮŽE VÁS TAKÉ INSPIROVAT

No products were found matching your selection.