Další informace

BONUS KE KAŽDÉ DŘEVOSTAVBĚ

Bezplatná kontrola stavu během záruky

Vaše spokojenost pro nás nekončí předáním klíčů. Po celou dobu trvání pětileté záruky u vás bezplatně provedeme osobní kontrolu stavu chaty. Naši tesaři zkontrolují usazení konstrukce a kondici dřeva, abychom zajistili jeho maximální životnost.

I po uplynutí záruční lhůty jsme vám stále k dispozici. Nabízíme vám bezplatné odborné poradenství ohledně údržby a v případě potřeby zajistíme profesionální servisní zásah se speciální slevou pro naše stávající klienty.

Vážíme si toho, že jste si pro svůj projekt vybrali právě B&M WOOD. Jako poděkování a připomínku naší spolupráce obdržíte ke každé realizované chatě originální ručně vyrobený dárek z naší dílny, který zútulní váš nový zahradní prostor.

MŮŽE VÁS TAKÉ INSPIROVAT

Myjava

📏 56 m² | 🧱 44 mm | 📐 7000 x 8000 mm

541 000,00 

Straňanka

📏 68,5 m² | 🧱 44/68 mm | 📐 5740 x 11940 mm

941 500,00 

Eva (Kompakt)

📏 8,5 m² | 🧱 44 mm | 📐 2500 x 3400 mm

149 400,00 

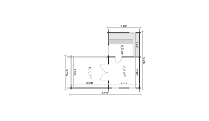
Dáša

344 100,00 

Nábytek a vybavení nejsou součástí.

Dáša je zahradní wellness domek navržený jako příjemné místo pro odpočinek i saunování. Dispozice stavby je rozdělena na saunovou část o ploše 6,9 m² a samostatnou odpočinkovou místnost o velikosti 8,5 m², která poskytuje dostatek prostoru pro relaxaci před i po saunování.

Na interiér plynule navazuje krytá terasa o rozloze 10,3 m², která vytváří příjemné venkovní zázemí pro ochlazení na čerstvém vzduchu nebo klidné posezení. Díky praktickému dispozičnímu řešení nabízí model Dáša vyváženou kombinaci saunové části, odpočinkového prostoru i venkovní relaxační zóny.

Tento model představuje funkční a zároveň estetické řešení, které přirozeně zapadne do zahrady a vytvoří příjemné místo pro pravidelný odpočinek.

Další informace


BONUS KE KAŽDÉ OBJEDNÁVCE

Bezplatná kontrola stavu během záruky

Vaše spokojenost pro nás nekončí předáním klíčů. Po celou dobu trvání pětileté záruky u vás bezplatně provedeme osobní kontrolu stavu chaty. Naši tesaři zkontrolují usazení konstrukce a kondici dřeva, abychom zajistili jeho maximální životnost.

I po uplynutí záruční lhůty jsme vám stále k dispozici. Nabízíme vám bezplatné odborné poradenství ohledně údržby a v případě potřeby zajistíme profesionální servisní zásah se speciální slevou pro naše stávající klienty.

Vážíme si toho, že jste si pro svůj projekt vybrali právě B&M WOOD. Jako poděkování a připomínku naší spolupráce obdržíte ke každé realizované chatě originální ručně vyrobený dárek z naší dílny, který zútulní váš nový zahradní prostor.

MŮŽE VÁS TAKÉ INSPIROVAT

No products were found matching your selection.