Další informace

Šířka a délka chaty

5,8×11,1 m

Výška budovy po hřeben

5,47 m

Výška obvodových stěn

2,3 m

Zastavěna plocha bez izolace

64,4 m²

Obytná plocha

86,1 m²

Tloušťka stěny

68 mm – Dřevěný roubený hranol

Plocha střechy

80 m² – Střešní záklop palubky 19 mm

Počet oken | Typ | Výška a šířka

11, Dřevěný rám izolační dvojsklo, 92×130, 92×70 cm

Počet dveří | Typ | Výška a šířka

11, Dřevěné masivní plné / Izolační dvojsklo, 198×85, 198×160 cm

Počet pokojů

8

Plocha terasy | balkon

19,1, 10 m²

Tloušťka podlahových prken

19 / 28 mm

BONUS KE KAŽDÉ DŘEVOSTAVBĚ

Bezplatná kontrola stavu během záruky

Vaše spokojenost pro nás nekončí předáním klíčů. Po celou dobu trvání pětileté záruky u vás bezplatně provedeme osobní kontrolu stavu chaty. Naši tesaři zkontrolují usazení konstrukce a kondici dřeva, abychom zajistili jeho maximální životnost.

I po uplynutí záruční lhůty jsme vám stále k dispozici. Nabízíme vám bezplatné odborné poradenství ohledně údržby a v případě potřeby zajistíme profesionální servisní zásah se speciální slevou pro naše stávající klienty.

Vážíme si toho, že jste si pro svůj projekt vybrali právě B&M WOOD. Jako poděkování a připomínku naší spolupráce obdržíte ke každé realizované chatě originální ručně vyrobený dárek z naší dílny, který zútulní váš nový zahradní prostor.

MŮŽE VÁS TAKÉ INSPIROVAT

Gerta

📏 11,4 m² | 🧱 28 mm | 📐 3800 x 3000 mm

100 800,00 

Javorec

📏 43 m² | 🧱 44 / 68 mm | 📐 6500 x 7700 mm

646 200,00 

Garáž B

📏 24 m² | 🧱 44 mm | 📐 4000 x 6000 mm

194 100,00 

Doubrava

1 999 000,00 

Nábytek a vybavení nejsou součástí.

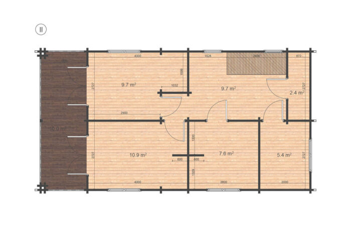
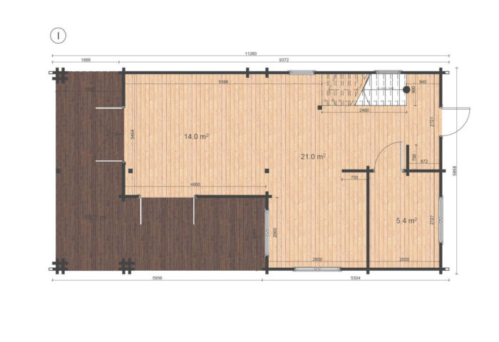
Model Doubrava je impozantní patrová dřevostavba, která svou výškou hřebene 5,47 metru a velkorysou dispozicí osmi samostatných místností představuje vrchol komfortu v naší nabídce.

Na zastavěné ploše 64,4 m² vzniklo díky plnohodnotnému podkroví celkem 86,1 m² obytné plochy, což z Doubravy činí ideální objekt pro celoroční rodinné bydlení nebo luxusní rekreační sídlo.

Chata vyniká bohatým prosklením čítajícím 11 oken s izolačním dvojsklem a stejným počtem dveřních prvků, což zajišťuje perfektní prosvětlení a přístup do všech částí domu. Exteriér doplňuje prostorná terasa o rozloze 19,1 m² a balkon (10 m²) v patře, který nabízí jedinečné výhledy do okolí.

Masivní 68mm roubený hranol z vysokohorského dřeva v kombinaci se zesílenou podlahou garantuje špičkovou stabilitu a vynikající tepelně-izolační vlastnosti této výjimečné stavby.

Další informace

Šířka a délka chaty

5,8×11,1 m

Výška budovy po hřeben

5,47 m

Výška obvodových stěn

2,3 m

Zastavěna plocha bez izolace

64,4 m²

Obytná plocha

86,1 m²

Tloušťka stěny

68 mm – Dřevěný roubený hranol

Plocha střechy

80 m² – Střešní záklop palubky 19 mm

Počet oken | Typ | Výška a šířka

11, Dřevěný rám izolační dvojsklo, 92×130, 92×70 cm

Počet dveří | Typ | Výška a šířka

11, Dřevěné masivní plné / Izolační dvojsklo, 198×85, 198×160 cm

Počet pokojů

8

Plocha terasy | balkon

19,1, 10 m²

Tloušťka podlahových prken

19 / 28 mm


BONUS KE KAŽDÉ OBJEDNÁVCE

Bezplatná kontrola stavu během záruky

Vaše spokojenost pro nás nekončí předáním klíčů. Po celou dobu trvání pětileté záruky u vás bezplatně provedeme osobní kontrolu stavu chaty. Naši tesaři zkontrolují usazení konstrukce a kondici dřeva, abychom zajistili jeho maximální životnost.

I po uplynutí záruční lhůty jsme vám stále k dispozici. Nabízíme vám bezplatné odborné poradenství ohledně údržby a v případě potřeby zajistíme profesionální servisní zásah se speciální slevou pro naše stávající klienty.

Vážíme si toho, že jste si pro svůj projekt vybrali právě B&M WOOD. Jako poděkování a připomínku naší spolupráce obdržíte ke každé realizované chatě originální ručně vyrobený dárek z naší dílny, který zútulní váš nový zahradní prostor.

MŮŽE VÁS TAKÉ INSPIROVAT

No products were found matching your selection.