Další informace

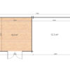
Šířka a délka chaty

3,3×7,36 m

Výška budovy po hřeben

2,16 m

Výška obvodových stěn

2 m

Zastavěna plocha bez izolace

24,3 m²

Obytná plocha

9,3 m²

Tloušťka stěny

28 mm – Dřevěný roubený hranol

Plocha střechy

25 m² – Střešní záklop palubky 19 mm

Počet oken | Typ | Výška a šířka

0, Dřevěný rám izolační dvojsklo, – cm

Počet dveří | Typ | Výška a šířka

1, Dřevěné masivní plné / Izolační dvojsklo, 185 x 140 cm

Počet pokojů

1

Plocha terasy

12,3 m²

Tloušťka podlahových prken

19 / 28 mm

BONUS KE KAŽDÉ DŘEVOSTAVBĚ

Bezplatná kontrola stavu během záruky

Vaše spokojenost pro nás nekončí předáním klíčů. Po celou dobu trvání pětileté záruky u vás bezplatně provedeme osobní kontrolu stavu chaty. Naši tesaři zkontrolují usazení konstrukce a kondici dřeva, abychom zajistili jeho maximální životnost.

I po uplynutí záruční lhůty jsme vám stále k dispozici. Nabízíme vám bezplatné odborné poradenství ohledně údržby a v případě potřeby zajistíme profesionální servisní zásah se speciální slevou pro naše stávající klienty.

Vážíme si toho, že jste si pro svůj projekt vybrali právě B&M WOOD. Jako poděkování a připomínku naší spolupráce obdržíte ke každé realizované chatě originální ručně vyrobený dárek z naší dílny, který zútulní váš nový zahradní prostor.

MŮŽE VÁS TAKÉ INSPIROVAT

Libor B

📏 16 m² | 🧱 44 mm | 📐 4000 x 4000 mm

186 200,00 

Dvojgaráž B

📏 38,5 m² | 🧱 44 mm | 📐 7000 x 5500 mm

319 600,00 

Hrabina

📏 52 m² | 🧱 44 mm | 📐 5950 x 7100 mm

900 200,00 

Erik

117 400,00 

Nábytek a vybavení nejsou součástí.

Model Erik je ztělesněním komfortu pro milovníky venkovního života. Díky unikátnímu protáhlému půdorysu nabízí tato chatka nejen útulný vnitřní prostor, ale především nadstandardní zastavěnou plochu, která je jako stvořená pro vybudování prostorné kryté terasy nebo relaxační zóny.

Masivní roubený hranol z vysokohorského dřeva o tloušťce 28 mm zajišťuje perfektní stabilitu celého objektu. Dominantní dvoukřídlé dveře s izolačním dvojsklem propojují interiér s exteriérem a dodávají chatě moderní, vzdušný vzhled.

Erik je ideální volbou pro ty, kteří chtějí trávit maximum času na čerstvém vzduchu, aniž by slevili z nároků na kvalitu a poctivé tesařské zpracování.

Další informace

Šířka a délka chaty

3,3×7,36 m

Výška budovy po hřeben

2,16 m

Výška obvodových stěn

2 m

Zastavěna plocha bez izolace

24,3 m²

Obytná plocha

9,3 m²

Tloušťka stěny

28 mm – Dřevěný roubený hranol

Plocha střechy

25 m² – Střešní záklop palubky 19 mm

Počet oken | Typ | Výška a šířka

0, Dřevěný rám izolační dvojsklo, – cm

Počet dveří | Typ | Výška a šířka

1, Dřevěné masivní plné / Izolační dvojsklo, 185 x 140 cm

Počet pokojů

1

Plocha terasy

12,3 m²

Tloušťka podlahových prken

19 / 28 mm


BONUS KE KAŽDÉ OBJEDNÁVCE

Bezplatná kontrola stavu během záruky

Vaše spokojenost pro nás nekončí předáním klíčů. Po celou dobu trvání pětileté záruky u vás bezplatně provedeme osobní kontrolu stavu chaty. Naši tesaři zkontrolují usazení konstrukce a kondici dřeva, abychom zajistili jeho maximální životnost.

I po uplynutí záruční lhůty jsme vám stále k dispozici. Nabízíme vám bezplatné odborné poradenství ohledně údržby a v případě potřeby zajistíme profesionální servisní zásah se speciální slevou pro naše stávající klienty.

Vážíme si toho, že jste si pro svůj projekt vybrali právě B&M WOOD. Jako poděkování a připomínku naší spolupráce obdržíte ke každé realizované chatě originální ručně vyrobený dárek z naší dílny, který zútulní váš nový zahradní prostor.

MŮŽE VÁS TAKÉ INSPIROVAT

No products were found matching your selection.