Další informace

Šířka a délka chaty

5,74×11,94 m

Výška budovy po hřeben

3,04 m

Výška obvodových stěn

2,7 m

Zastavěna plocha bez izolace

68,5 m²

Obytná plocha

50 m²

Tloušťka stěny

44/68 mm – Dřevěný roubený hranol

Plocha střechy

60 m² – Střešní záklop palubky 19 mm

Počet oken | Typ | Výška a šířka

8, Dřevěný rám izolační dvojsklo, 50×52, 39×150, 198×85, 198×170 cm

Počet dveří | Typ | Výška a šířka

4, Dřevěné masivní plné / Izolační dvojsklo, 198×85 cm

Počet pokojů

4

Tloušťka podlahových prken

19/28 mm

BONUS KE KAŽDÉ DŘEVOSTAVBĚ

Bezplatná kontrola stavu během záruky

Vaše spokojenost pro nás nekončí předáním klíčů. Po celou dobu trvání pětileté záruky u vás bezplatně provedeme osobní kontrolu stavu chaty. Naši tesaři zkontrolují usazení konstrukce a kondici dřeva, abychom zajistili jeho maximální životnost.

I po uplynutí záruční lhůty jsme vám stále k dispozici. Nabízíme vám bezplatné odborné poradenství ohledně údržby a v případě potřeby zajistíme profesionální servisní zásah se speciální slevou pro naše stávající klienty.

Vážíme si toho, že jste si pro svůj projekt vybrali právě B&M WOOD. Jako poděkování a připomínku naší spolupráce obdržíte ke každé realizované chatě originální ručně vyrobený dárek z naší dílny, který zútulní váš nový zahradní prostor.

MŮŽE VÁS TAKÉ INSPIROVAT

Libor C

📏 20 m² | 🧱 44 mm | 📐 4000 x 5000 mm

186 200,00 

Žitková

📏 44 m² | 🧱 44/68 mm | 📐 5090 x 8590 mm

924 900,00 

Bětka

📏 18,6 m² | 🧱 44 mm | 📐 3200 x 5800 mm

449 800,00 

Straňanka

941 500,00 

Nábytek a vybavení nejsou součástí.

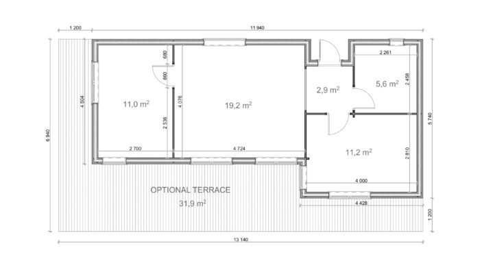
Model Straňanka je moderní přízemní dřevostavba s protáhlým půdorysem, který nabízí velmi praktické a logické uspořádání vnitřního prostoru o rozloze 50 m². Chata je rozdělena do čtyř samostatných místností, což poskytuje dostatek soukromí i pro vícečlennou rodinu.

Výrazným technickým rysem jsou nadstandardně vysoké obvodové stěny (2,7 m), které v kombinaci s osmi okny různých formátů zajišťují interiéru maximální vzdušnost a přísun denního světla. Všechna okna i čtyři dveřní prvky jsou osazeny kvalitním izolačním dvojsklem, které spolu s roubeným hranolem o tloušťce až 68 mm zaručuje výbornou tepelnou pohodu.

Straňanka je díky svému nadčasovému designu a poctivému zpracování z vysokohorského dřeva ideální volbou pro celoroční rekreaci i komfortní zahradní bydlení.

Další informace

Šířka a délka chaty

5,74×11,94 m

Výška budovy po hřeben

3,04 m

Výška obvodových stěn

2,7 m

Zastavěna plocha bez izolace

68,5 m²

Obytná plocha

50 m²

Tloušťka stěny

44/68 mm – Dřevěný roubený hranol

Plocha střechy

60 m² – Střešní záklop palubky 19 mm

Počet oken | Typ | Výška a šířka

8, Dřevěný rám izolační dvojsklo, 50×52, 39×150, 198×85, 198×170 cm

Počet dveří | Typ | Výška a šířka

4, Dřevěné masivní plné / Izolační dvojsklo, 198×85 cm

Počet pokojů

4

Tloušťka podlahových prken

19/28 mm


BONUS KE KAŽDÉ OBJEDNÁVCE

Bezplatná kontrola stavu během záruky

Vaše spokojenost pro nás nekončí předáním klíčů. Po celou dobu trvání pětileté záruky u vás bezplatně provedeme osobní kontrolu stavu chaty. Naši tesaři zkontrolují usazení konstrukce a kondici dřeva, abychom zajistili jeho maximální životnost.

I po uplynutí záruční lhůty jsme vám stále k dispozici. Nabízíme vám bezplatné odborné poradenství ohledně údržby a v případě potřeby zajistíme profesionální servisní zásah se speciální slevou pro naše stávající klienty.

Vážíme si toho, že jste si pro svůj projekt vybrali právě B&M WOOD. Jako poděkování a připomínku naší spolupráce obdržíte ke každé realizované chatě originální ručně vyrobený dárek z naší dílny, který zútulní váš nový zahradní prostor.

MŮŽE VÁS TAKÉ INSPIROVAT

No products were found matching your selection.